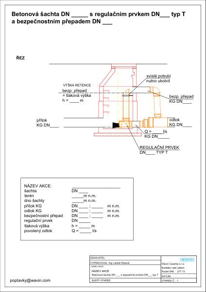
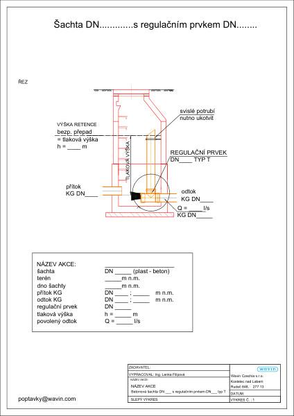
Regulační prvek
Regulační prvky slouží pro úpravu průtoku odváděné dešťové vody, kterou nelze na pozemku zasakovat. Kromě zajištění plynulého odtoku zabraňují i vyplavování nečistot a sedimentu.
Regulační prvky slouží pro úpravu průtoku odváděné dešťové vody, kterou nelze na pozemku zasakovat. Kromě zajištění plynulého odtoku zabraňují i vyplavování nečistot a sedimentu.